About 2455 Us Highway 93 S
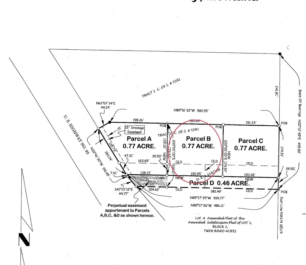
Prime 3/4 acre (.77) lot ready for your development. It is outside city limits, but has city services close if you desire to connect. A Flathead Electric Coop power converter is next to property to the north. It is zoned Light Industrial and located on the east side of Hwy 93 South just behind Skelton Motorsports and adjacent to Habitat for Humanity to the South with Murdock's just across Hwy 93 S, less than a block to the north. There is an abandoned well for which no permit was ever recorded, so not sure of its' current state. An additional 10 acre lot is nearby and also listed for sale if more space is needed. Owner is a licensed MT real estate agent.
Features of 2455 Us Highway 93 S
| MLS® # | 30056776 |
|---|---|
| Price | $350,000 |
| Acres | 0.77 |
| Type | Land |
| Sub-Type | Commercial |
| Status | Active |
Community Information
| Address | 2455 Us Highway 93 S |
|---|---|
| City | Kalispell |
| County | Flathead |
| State | MT |
| Zip Code | 59901 |
Amenities
| Is Waterfront | No |
|---|---|
| Has Pool | No |
Interior
| Fireplace | No |
|---|
Additional Information
| Date Listed | September 1st, 2025 |
|---|---|
| Days on Market | 1 |
| Foreclosure | No |
| Short Sale | No |
| RE / Bank Owned | No |
